Hus 1352

Hus 1352

Hus 1352

Hus 1352

Hus 1352

Hus 1352

Hus 1352

Hus 1352

Hus 1352

Hus 1352

Hus 1352

Hus 1352

Hus 1352

Hus 1352

Hus 1352

Hus 1352

Hus 1352

Villan med en praktisk planlösning för hela familjen

Om huset

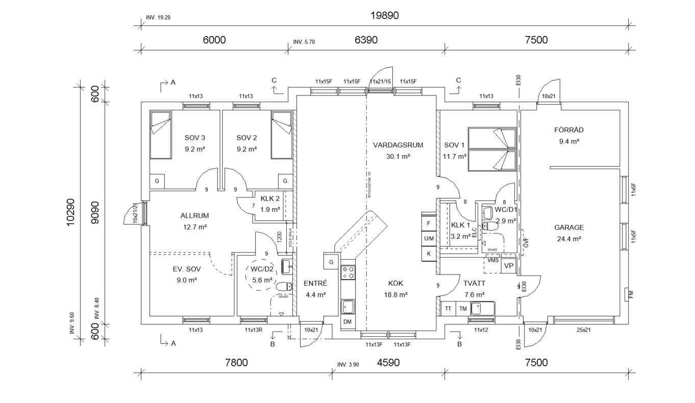
Hus 1352 är ett enplanshus med en boyta på 131,8kvm och en mycket praktisk planlösning.

Huset har en öppen lösning mellan kök och vardagsrum som ger en härlig rymd via sitt ryggåstak.

Master bedroom har ingång till en walk in closet och ett helkaklat badrum. Huset har ytterligare ett badrum, två sovrum och ett allrum som går, vid behov, att dela av till ett fjärde sovrum om man så önskar.

Praktisk groventré med tvättavdelning och utgång till ett stort garage/förråd, på 35,3kvm.

Snabbfakta

Ihopbyggt garage/förråd
1 plan
131,8m² + 35,3m² biyta